LOKALE BIUROWE | PORCELANOWA | Z PARKINGIEM
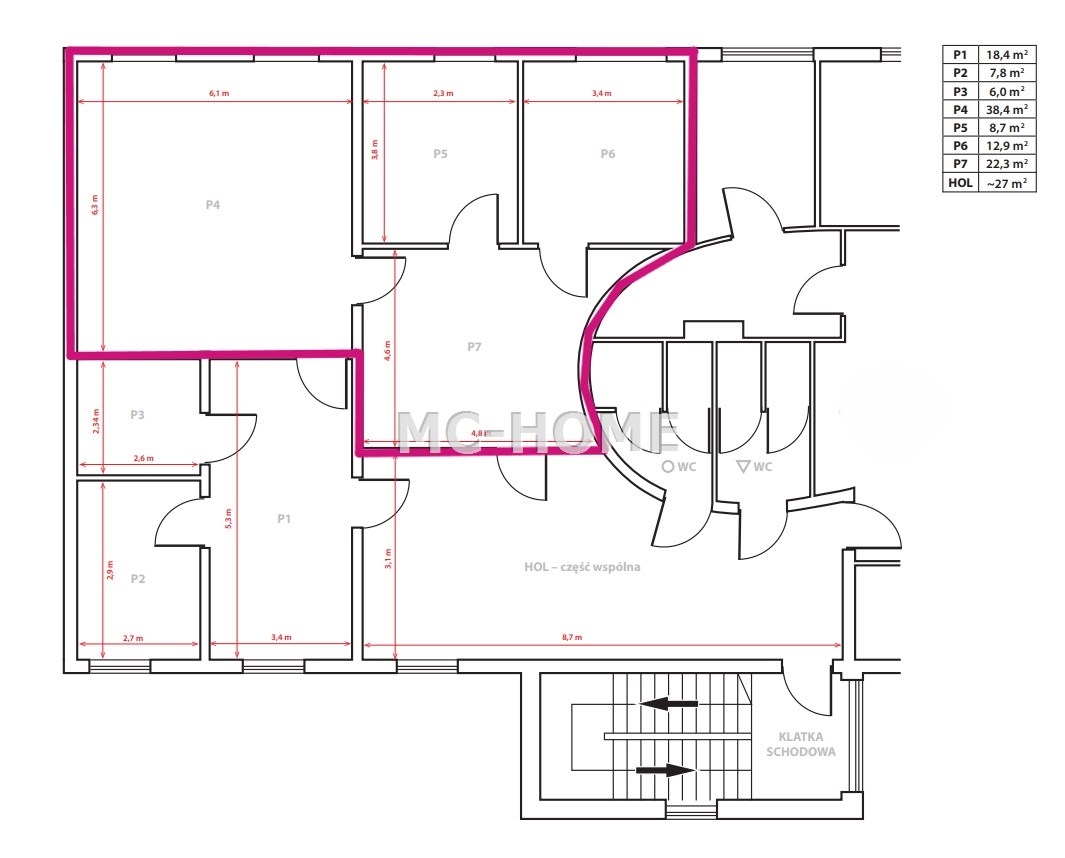
Zapraszam do zapoznania się z ofertą najmu powierzchni biurowej od 32 do 114,5 m2. Łącznie 7 pokojów o powierzchni od 6 do 38,4 m2. Do dyspozycji łazienki, hol oraz klatka schodowa - dzielone z agencją reklamową, która mieści się na tym samym piętrze.
Lokal nieumeblowany, z możliwością adaptacji. WAŻNE: jest możliwość wynajęcia tylko części lokalu (szczegółowy rzut pomieszczeń w zdjęciach).
Bardzo dobra lokalizacja (ul. Porcelanowa) - blisko drogi krajowej nr 86 oraz wjazdu na A4. Tuż obok przystanki autobusowe. 15 min pieszo do przystanku kolejowego Katowice-Zawodzie.
Koszty:
- czynsz 4100 zł
- Media w przeliczeniu na 1m2 zajmowanej powierzchni - cena netto
- 6,25 zł - media (utrzymanie części wspólnych, śmieci, monitoring, 1 miejsce parkingowe, miejsce na reklamę - po uzgodnieniu (wykonanie reklamy we własnym zakresie)
- 1.74 zł - prąd
- 8.07 zł - płatne przez 7 miesięcy
- Kaucja 1 czynsz
- Wynagrodzenie agencji 1 czynsz + vat
-Podane ceny są cenami netto
W cenie 1 lub 2 miejsca parkingowe oraz bezpłatny parking przy ulicy.



